Special Town Meeting
Monday, December 1, 2025 - 7:00 p.m.
Murdock Middle High School Gymnasium, 3 Memorial Drive
Doors open at 6:00 p.m. - please arrive early to check in!
Upcoming Holiday Events in Winchendon!
December 5: Festival of Lights Tree Lighting at Grout Park
December 6: Festival of Lights with Santa at Old Murdock Senior Center
December 7: Vendor Sale at the American Legion
December 13: Holiday Bazaar and Cookie Sale at UUCW
December 13: Sensory Friendly Santa Visit at Beals Memorial Library
December 13--December 14: Christmas in Toy Town Holiday Open House at WHCC
December 17: Movie Night at the Beals, It's a Wonderful Life
December 18: Winchendon Community Caroling at the Beals
December 20: Pioneer Valley Brass Quintet at UUCW
For details, scroll down to the Community Connector Calendar!
This Week's Winchendon News
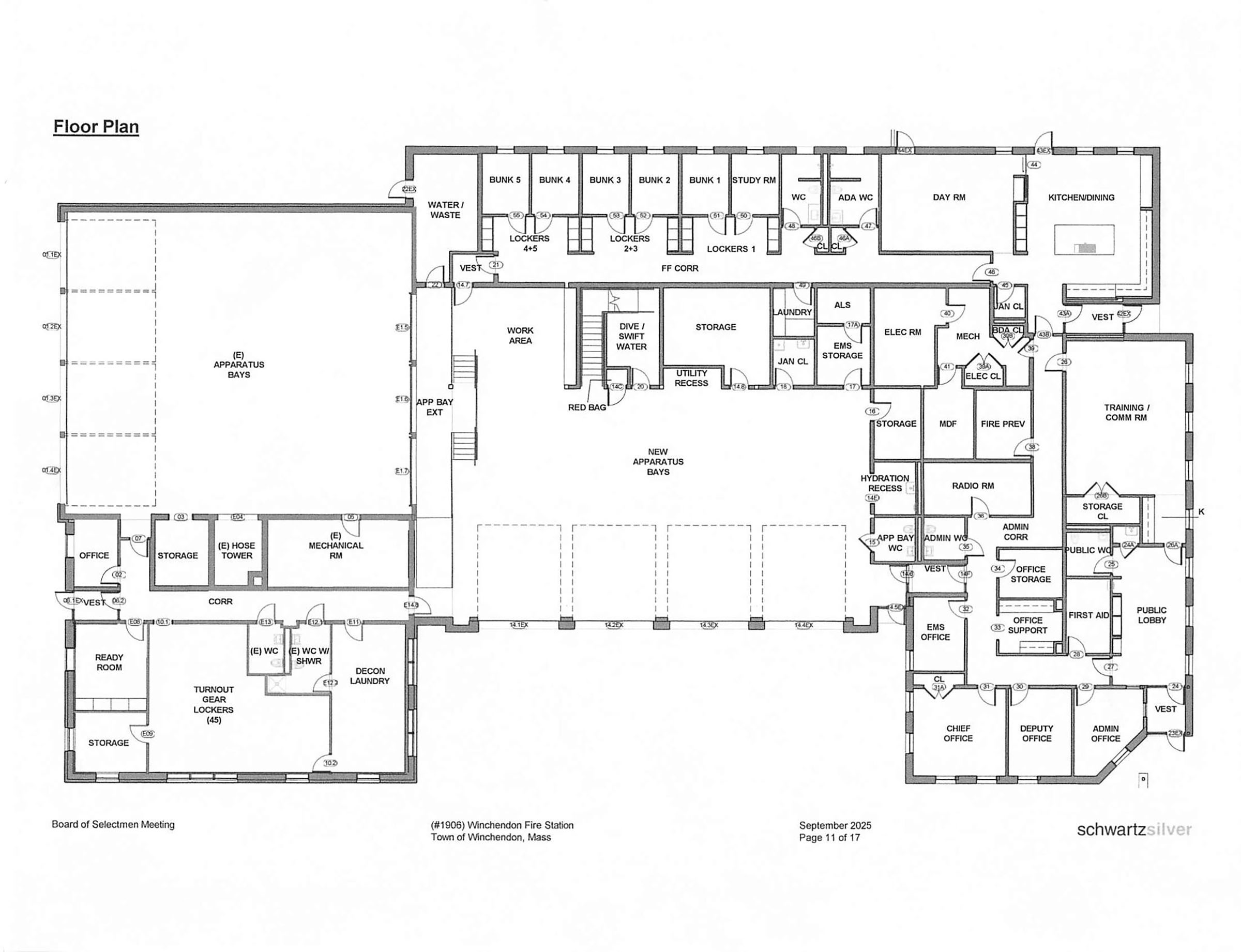
Winchendon Voters Will Decide on Funding for Fire Station Addition and Renovation Project at Special Town Meeting on Monday, December 1

Plans for Fire Station Renovation and Addition Project. Old fire station building is on the left.
Photo copyright Town of Winchendon
On Monday, December 1 at 7:00 p.m., Winchendon voters will convene in the Murdock Middle High School Gymnasium (3 Memorial Drive) to consider whether to approve the second Proposition 2-1/2 override to come before voters this year. In this case, the override is a "debt exclusion" authorizing the town to borrow up to $16,632,499 to fund a proposed major renovation and addition to the Winchendon Fire Station at 405 Central Street.
The Fire Station project has been under development, and has come before voters twice, since 2019. A larger-scale version was rejected by voters in 2019, and in 2023, residents approved a debt exclusion to pay for shovel-ready designs for a scaled-down and tightened up proposal. Designs are needed for grant applications and detailed quotes from contractors.
In September of this year, Winchendon Fire Chief Tom Smith came before the Board of Selectmen urging them to put the project before voters without further delay, as projected construction costs would only continue to rise with time. The Board agreed that the issue was urgent enough to justify a Special Town Meeting, rather than wait until Annual Town Meeting next May. (The town has normally held a Fall Town Meeting every year, but for the last two years has not scheduled one. There is money built into the budget for two Town Meetings per year, plus an extra one and an extra ballot vote, in case these are needed.)
The Fire Department has been working hard to answer voters' questions and provide information to the public. Chief Smith has appeared before the Board of Selectmen and Finance Committee several times with detailed presentations. These are available to watch on video on WinchendonTV. Information sessions for the public have included online Zoom meetings and open houses at the Fire Station, where visitors can tour the station, see the current conditions and ask any questions they wish.
The last open house will be Saturday, November 29, from 10:00 a.m. to 12:00 p.m.
A debt exclusion temporarily increases the property tax rate above the limits of Proposition 2-1/2. Unlike an "override," which is a permanent increase, a debt exclusion is removed from the tax rate when the loan is retired.
As discussed at the Finance Committee hearing on Tuesday, November 18, the actual amount to be borrowed may be lower than the amount voted at Town Meeting. Chief Smith explained that the project has "contingencies built in" and he hopes to be able to bring in $1 million to $2 million is various grants to help with the cost. Town Manager Bill McKinney said that the amount is not "locked in" until the bond is issued for the project. Bids will go out for what the project needs after grants and other funding sources are found, and the town will only borrow what they need for the bid. "We're not locked in to what we authorize. We're locked in to what we need to borrow," he explained.
Because the article concerns borrowing, it must pass at Town Meeting by a two-thirds majority vote. If the article passes, it must also pass a ballot vote by a simple majority. That vote would be scheduled early next year.
Town election officials are planning for a large turnout at the Special Town Meeting and ask voters to plan ahead, as well. Town Meeting will convene in the Gymnasium, like Annual Town Meeting this spring, to accommodate the larger numbers.
Maureen Ward, the Town Warden, urges all voters to arrive early to check in. Doors will open at 6:00 p.m. There will be multiple check-in stations, but the process takes a couple of minutes per person, and, as Ms. Ward says, "if you arrive at ten to 7:00, you are unlikely to get in before the meeting starts." The meeting can begin as soon as a quorum of voters is checked in, although the Moderator will usually postpone calling to order if there is still a long line.
For those attending their first Town Meeting, the check-in process is expedited by a card reader that can scan a voter's driver's license. Checkers can also look up a voter who lacks (or prefers not to use) a driver's license. Each voter is given an electronic "clicker" for voting and each clicker has to be recorded to make sure they're all returned.
The Warrant may be viewed or downloaded from the town website at www.townofwinchendon.com/DocumentCenter/View/1571/Special-Town-Meeting-Warrant-December-1-2025
There is one additional article on the Special Town Meeting Warrant, which does not involve any expenditure. It asks voters to approve the town implementing a "lodging excise tax" to help bring in more revenue. This tax would be collected by the state and disbursed to the town.
The Courier has published 16 articles about the Fire Station project since 2019. For those interested in the complete history, they are all linked below (you may need to scroll down in that edition of the paper if the article isn't the first on the page). For a quicker review, the 2025 articles are at the bottom of the list.
"Important decisions for Winchendon voters at Fall Town Meeting" in the
October 24-31, 2019 edition of the online Winchendon Courier
"Winchendon voters defeat article for expanded fire station" in the
October 31-November 7, 2019 edition of the online Winchendon Courier
"BOS Updated on Ongoing Plans for Fire Station Upgrade" in the
November 4-11, 2021 edition of the online Winchendon Courier
"Town Manager Presents Draft Town Meeting Warrant to BOS" and "WFD Posts Clarifications of Request for Fire Station Design Funding on Social Media" in the
September 15-22, 2022 edition of the online Winchendon Courier
"Town Manager Presents Final STM Warrant to BOS (Article 5)" in the
September 29-October 6, 2022 edition of the online Winchendon Courier
"Voters Will Face Tough Questions at Fall STM on October 24 (Article 5)" in the
October 13-20, 2022 edition of the online Winchendon Courier
"STM Voters Approve Fire Station Design, Water Main, Shoot Down Town Charter Changes" in the
October 27-November 3, 2022 edition of the online Winchendon Courier
"Detailed schematic for proposed design of new Fire Station" in the
November 3-10, 2022 edition of the online Winchendon Courier
"Town Offering Input Sessions About Proposed Fire Station Upgrade" in the
January 5-12, 2023 edition of the online Winchendon Courier
"What You Need to Know About Next Thursday's Vote on the Fire Station Debt Exclusion" in the
January 12-19, 2023 edition of the online Winchendon Courier
"Fire Station Debt Exclusion Passes At the Polls" in the
January 19-26, 2023 edition of the online Winchendon Courier
"Town Residents Needed for Fire Station Design Working Group" in the
March 9-16, 2023 edition of the online Winchendon Courier
"Fire Chief Smith Brings Update on Fire Station Project to BOS" in the
September 11-18, 2025 edition of the online Winchendon Courier
"Chief Smith Presents Details and Schematics on Fire Station Project to BOS" in the
September 18-25, 2025 edition of the online Winchendon Courier
"BOS Discuss Fall Town Meeting to Present Fire Station Project to Voters" in the
September 25-October 2, 2025 edition of the online Winchendon Courier
"FinCom Holds Public Hearing on Warrant Articles for Special Town Meeting" in the
November 20-27, 2025 edition of the online Winchendon Courier
DPW Director Gives Some Updates on Local Projects

Town Manager Bill McKinney (on left) and DPW Director Pat WQood
Photo copyright Town of Winchendon
Joining Town Manager Bill McKinney on the latest episode of WinchendonTV's "What's Up, Winchendon?", Department of Public Works Director Pat Wood reviewed some of the projects and plans currently being worked on by the DPW.
A new online permitting system is being put in place, Mr. Wood said, which can be used by both local residents and the town. The system "will also have a work order system for us internally, so that we can keep things moving and ensuring that our assets are up to par and that our crews have what they need. The Online Permitting System is also going to help us to communicate with the residents. The contract is easier. Help keep more of historical record of everything, track payments and get out there to do inspections on any kind of utility," he explained. Residents will be able to sign up to use the system. They will have an account through the town website, and will be able to see all their permits, their status and what more they need to do in their account.
The Central Street Reclamation job is just finishing up, Mr. Wood said. The next phase will be milling and paving the stretch from Jackson Avenue up to Willoughby Street (roughly, from the Fire Station to Murdock Farm). That should put the road in good shape for 10-15 years. They're also looking at putting in new or updated sidewalks, utilizing grant money. They're planning to put in sidewalks from Jackson Avenue to the elementary school on Memorial Drive, about a quarter mile.
The town did not make the final cut for the Mass Trails funding to extend the Rail Trail, but Mr. Wood says they'll keep tring, and have a concept for extending the Rail Trail all the way to the New Hampshire border.
Designs for the Blair square project that the town won a Mass Department of Transportation grant for several years ago are "about 75 percent" done and construction is slated to begin in 2029, possibly a year earlier. The Beech Street work, funded by Community Development Block Grant (CDBG) money, will continue with infrastructure and sidewalk work that should begin soon.
Mr. Wood said that the installation of the big water main from Ashburnham came in under budget and a little bit under schedule. "So we've already seen significant decreases in our water loss consumption on that line, just within the last few months," he said. "[The town's water management company] Veolia is ecstatic about it, so it was a huge project. It's great to get it under our belts, and it's only going to help us in the long run." Mr, Wood advised the public that the electronic message board on Spring Street has been moved because it was right in front of one of the pump houses for the water line, and the message board got in the way when the pump was serviced.
Mr. Wood concluded by letting everyone know that the department is hiring--they have an open highway position, and they need a water operator. Any qualified person interested in working for the Winchendon DPW is invited to apply. The job listings are not on the town website, so call the DPW at 978-297-0170 or visit the DPW office in Town Hall, 109 Front Street, for more information.
Buy Local on Small Business Saturday!
This Saturday, November 29, is "Small Business Saturday," falling between "Black Friday" (The Friday after Thanksgiving) and "Cyber Monday". All three of these days kick off the holiday shopping season by taking advantage of the long Thanksgiving weekend. But Small Business Saturday has greater significance for rural communities like Winchendon.
Small Business Saturday was actually founded by the American Express credit card company in 2010, as a way of encouraging shoppers to spend their dollars at small local businesses. American Express had some interest in getting people to shop, of course, but there was no doubt that small local businesses were struggling in the aftermath of the 2008 Great Recession and could use any boost they could get.
Later, the federal Small Business Administration partnered with American Express to promote Small Business Saturday nationwide, sending out the message to communities and local givernments to "shop small" and "shop local." In the years since, Small Business Saturday has become an established tradition, with local businesses, chambers of commerce and organizations promoting and sponsoring it.
Small businesses are vital to towns like Winchendon. Buying local and buying from small businesses have a number of specific and proven benefits.
The "local multiplier effect" means that a higher percentage of each dollar spent circulates within a community when residents shop at locally-owned businesses. Local businesses spend their profits on wages to their local employees, supplies from local sources and local services such as utilities and maintenance.
Some studies have shown that more than half of the money spent in small local businesses stays within the community, as opposed to about 14 percent of dollars spent at big box chain stores.
Small rural businesses tend to operate on thin profit margins. A good shopping season can mean the difference between staying open or closing their doors. Holiday shopping helps local businesses pay for winter expenses and boosts their end-of-year cash reserves.
Even small local businesses can be important employers for a small town. Not only do local businesses keep money circulating through wages, every time a small business closes, its employees usually have to seek jobs outside the community. People spend where they work--they buy lunch, run errands and use services near to their workplaces because that's easier and more convenient.
Small local businesses can provide gathering places for residents and contribute to the character, social fabric and vibrancy of a community. This doesn't just apply to coffee shops and entertainment venues. How many times have you picked up some news while shopping in a local business? Local store owners hear everything, and you can hardly spend fifteen minutes in some Winchendon businesses without exchanging some chatter about what's going on around town.
But perhaps most important, Small Business Saturday encourages local entrepreneurs and residents to feel that launching a business in their town is a viable idea--that their community values and supports local business. The whole idea behind Small Business Saturday is to grow local business, as well as patronize those that are already well-established.
Winchendon is a hotbed of entrepreneurialism these days--dozens of Winchendon residents have started their own enterprises. Some of them are part of the Local Makers Hub (you can see a list of members at www.thehealcollaborative.org/localmakershub). Others have food trucks, or home-based businesses, or operate by mail order and Etsy. You can meet many of them at local crafts shows and bazaars--or at Rietta, or Fall Fest, or Solstice Fair.
But we've got brick-and-mortar businesses moving into town or starting up at a startling rate, as well. Just within the last two years, we've welcomed Sippin' Serendity, Appleseed Fabrics, Mustard Seed Boutique, Ikiaremy Sweets & Restaurant, The Farm Stand, Sleepy Hauler Antique Center, Auntie Jordan's Grooming, Thumbs Up Barbershop, VIP Barbershop--we're practically booming. And we've still got a solid base of businesses that long-time residents grew up with. Horse & Buggy Feeds will be celebrating its 50th year in business in 2026.
You can see a complete, and constantly updated, list of Winchendon businesses--and not just retail businesses, but services, medical, legal, repair and maintenance, and much more--at https://winchendoncourier.net/directory.htm.
So, on Saturday, as you head out to start (or finish) your Christmas shopping, or stop by the Fire Station Open House, or show your Thanksgiving guests what Winchendon is all about, see what local stores and businesses have to offer. If you don't have a passport for Toy Town Christmas, pick one up in any of the participating businesses, and try out some places you haven't visited before. You can find them all listed at www.toytownchristmas.com. By buying local and supporting our business people, we'll keep Winchendon growing.
Holiday Fun at the Beals Memorial Library!

Join Ms. Alexis and Santa for the Beals Memorial Library's third annual Sensory Friendly Santa Visit on Saturday, December 13.
Photo courtesy of Beals Memorial Library
This December, the Beals Memorial Library is getting into the holiday spirit by having a month full of fun for the whole family while celebrating the Winchendon community with our Food for Fines, Sensory Friendly Santa Visit, Holiday Movie Matinee, and Winchendon Community Caroling.
Throughout the whole month of December, the Winchendon library is giving community members a chance to clear their overdue fines and help neighbors in need. For every unopened, unexpired canned or non-perishable item you donate, $1 in late fees will be waived, up to $10. Fines will not be forgiven for library items that are lost or damaged. Those without fines are also encouraged to donate items, as each item will be used anonymously to forgive another patron’s fines. Some of the most requested items are canned vegetables, beans, soup, rice, pasta, peanut butter, jelly, canned protein, cooking oil, spices, diapers (of any size), hats, and mittens. All donations will go to support local families through the Winchendon CAC.
On Saturday, December 13, from 11:00 a.m. to 3:00 p.m. [Snow Date: Sunday, December 14th] Santa is visiting the library for our annual Sensory Friendly Santa Visit. He will be meeting individuals (regardless of age) who are neurodivergent, on the autism spectrum, or have other special needs, and their families. Families get to enjoy 10 minutes with Santa in a separate, sensory-friendly room to share their wishes and snap festive photos. Participants are also invited to take part in a holiday craft, listen to stories, receive a winter-themed book, and enjoy delicious baked goods provided by the Friends of Beals Memorial Library. This program has limited space. Registration is required.
Get into the holiday spirit with our annual viewing of It’s a Wonderful Life. On Wednesday, December 17, starting at 3:00 p.m., grab some popcorn, get cozy, and come enjoy this Hollywood classic on the big screen. The film stars James Stewart as George Bailey, a frustrated businessman at the end of his rope. An angel is sent from Heaven to save George by showing him what life would have been like if he never existed. In addition to James Stewart, the film also stars Donna Reed, Lionel Barrymore, and Henry Travers.
If you love to sing and want to spread some holiday cheer, then join us on Thursday, December 18, at 5:30 p.m. for Winchendon Community Caroling. Bundle up and come share holiday cheer with friends and neighbors, making spirits bright by participating in this year’s holiday carol. Interested carolers will meet at the Winchendon library to get their music booklets and the caroling map at 5:30 p.m., and then at 6:00 p.m. carolers will be singing their first song for library patrons before spreading the cheer to other community spots.
The Beals Memorial Library is located at 50 Pleasant Street in Winchendon. For more information, contact the library at 978-297-0300 or visit their website at bealslibrary.org.
Arina Masalskaia Wins Beals Prize for Young Poets

Arina Masalskaia, a junior at Cushing Academy, is the winner of the Beals Memorial Library's third annual Beals Prize for Young Poets, for her poem, Pending.
Photo courtesy of Beals Memorial Library
A panel of three distinguished judges proclaimed Cushing Academy student, Arina Masalskaia, the winner of the Beals Memorial Library's third annual Beals Prize for Young Poets, for her poem, Pending. Second went to Grace Alatalo of Oakmont Regional High School for At Atomic Tangerine, and Yukimura Takahashi, also of Cushing Academy, took third prize with Reminders of Japan.
Ms. Masalskaia is a junior at Cushing and is spoken-word performer and multilingual writer from Moscow, Russia. She competed at National Speech & Debate Association Nationals in Original Spoken Word Poetry and publishes articles on philosophy and politics. Her work is often based on her experiences growing up between cultures. In her free time, she fences competitively.
The competition judges had this to say about her poem, "The first place poem was instantly and unanimously chosen by the three of us. A long poem borrowing a form from the format of an interview, the questions it asks in each stanza are answered in short but cutting replies suggestive of harder truths without saying those directly. This poem has many of the features that make poems enjoyable--great use of pacing and rhythm, internal sounds pulling us in, metaphor, great diction and clarity, surprises that keep us alert and on our toes, great syntax and a well-woven whole from its many parts, a clear and definite voice, and a sense of mystery leaving us aching from what might have come before the poem, and what comes next. Simply put, this is a very powerful poem."
Other competition finalists included: Lukas Botnick of Cushing Academy for The Game; Ines Khamis of Cushing Academy for To Be From a Place I Cannot Go: The Distance Between Two Freedoms; Ophylia Li of Cushing Academy for [Untitled]; Kaitlyn Rossi of Athol High School for Dead Eyes; Stella Sun of Cushing Academy for A Wanderer's Song; Lucas Torrado, formerly of Cushing Academy for After Practice; and Angelina Yu of Cushing Academy for [Untitled].
Jurors for the contest were poets Dr. Fred Gerhard, the 2024 winner of Art on the Trails in Massachusetts, and the author of Drifting to "Hello" (Khotso Publishing, 2023); and Dr. DeMisty Berllinger, author of All Daughters Are Awesome Everywhere (University of Nebraska Press) and the poetry collection Peculiar Heritage (Mason Jar Press). Also judging was educator, Jared D'Arcey, a Spanish teacher and Assistant Dean of Academics for Faculty Development at the Winchendon School.
The contest honors the memory of Charles L. Beals, the benefactor of the Beals Memorial Library, whose dedication to the written word continues to benefit the townspeople of Winchendon, Massachusetts over 110 years later.
The Beals Prize for Poetry was funded by the Beals Memorial Library, and the Friends of the Library.


